alterações ao longo do tempo
Conheça a fachada e as plantas baixas da Câmara de Mariana ao longo dos tempos na linha de tempo abaixo.
navegue pela linha do tempo
Fachadas
1800
1822 - 1899
1900 - 1949
1950 - 1989
1990 - 2021
2022
Plantas
1792
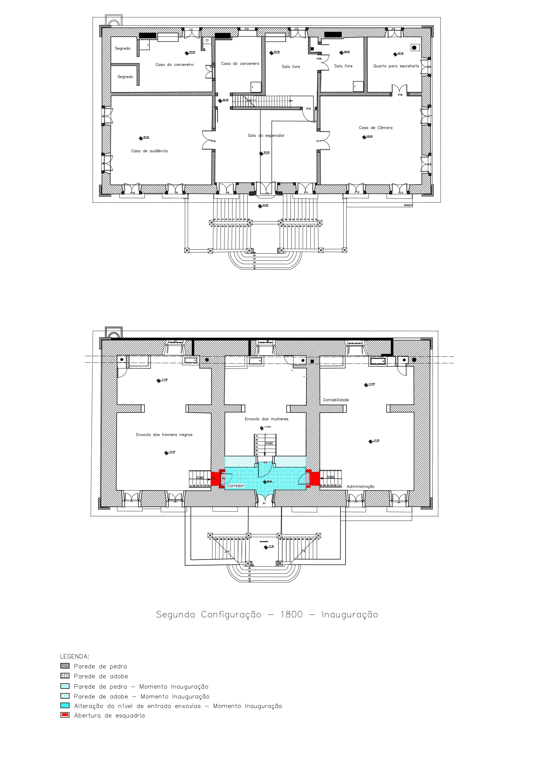
1800
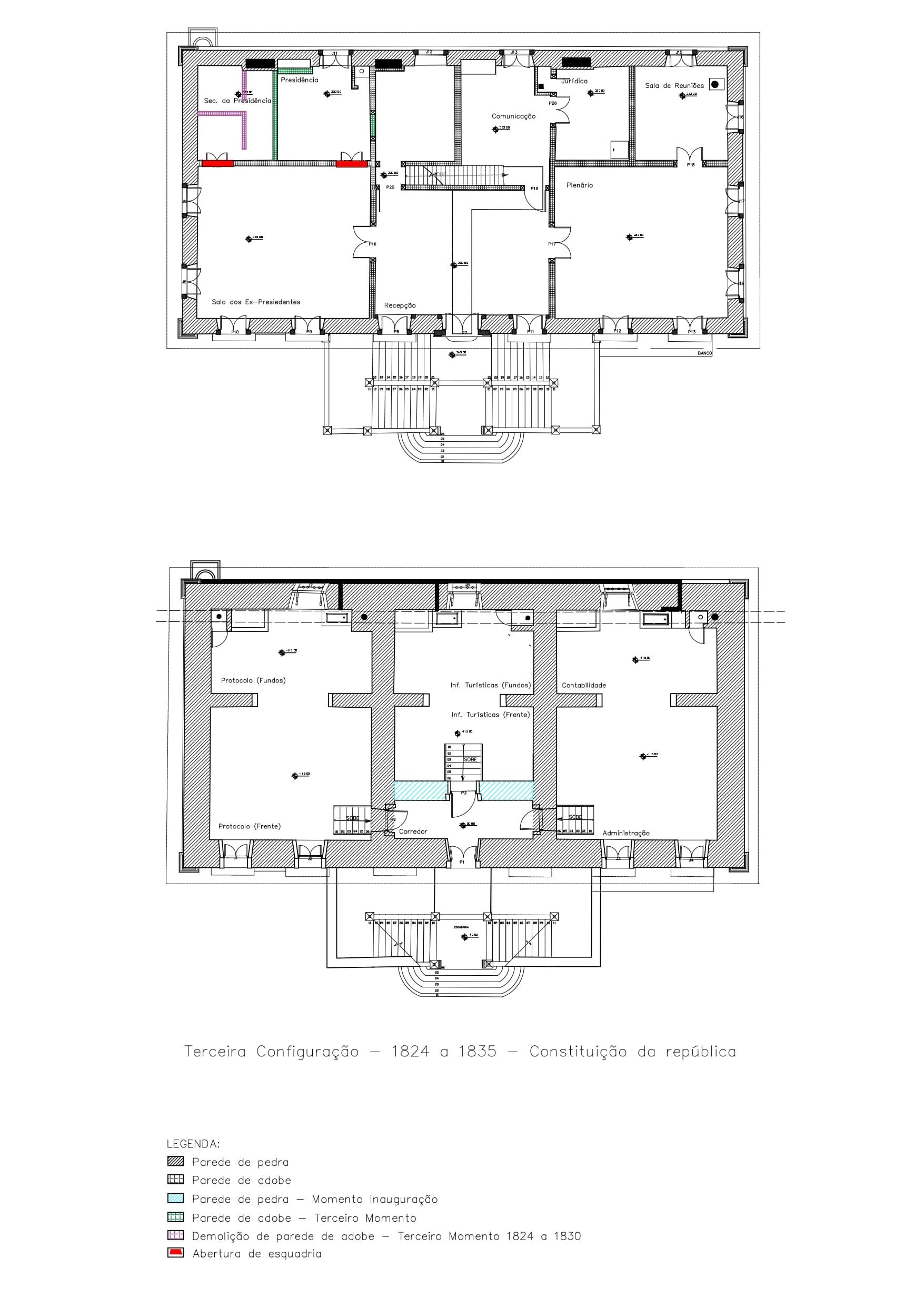
1824-1835
1840-1900
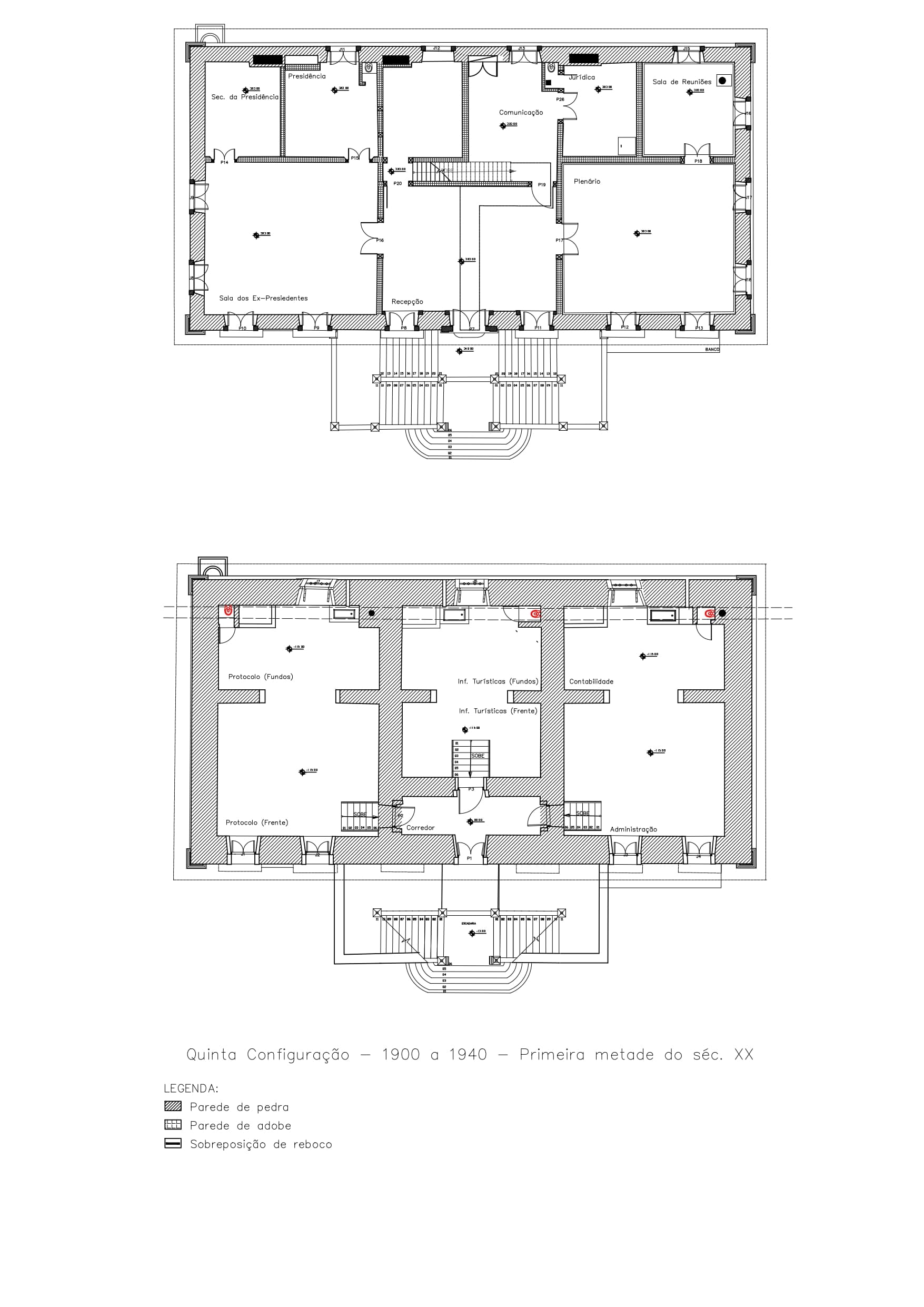
1900-1940
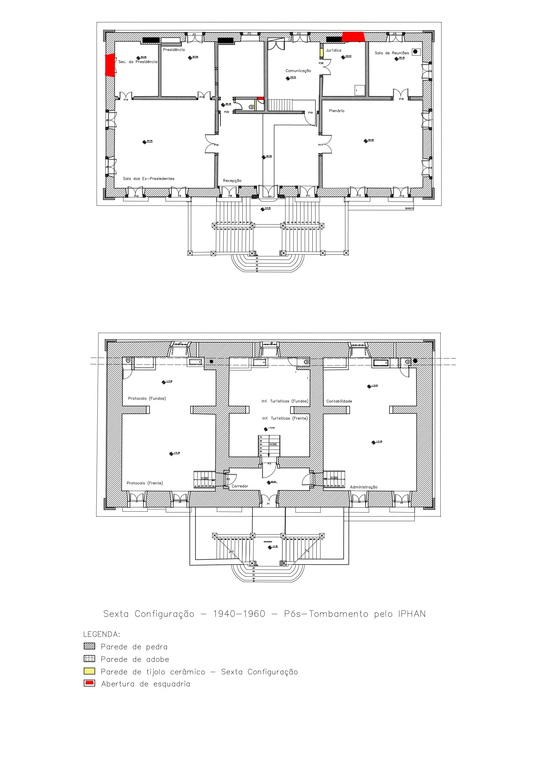
1940-1960
1970-1980
2021-2023
Fachada em 1800
Fachada entre 1822 e 1899
Fachada entre 1900 e 1949
Fachada entre 1950 e 1989
Fachada entre 1990 e 2021
Fachada a partir de 2022
Planta em 1792
Planta em 1800
Planta entre 1824 e 1835
Planta entre 1840 e 1900
Planta entre 1900 e 1940
Planta entre 1940 e 1960
Planta entre 1970 e 1980
Planta a partir de 2021